Les lignes lisses des arbustes de pommes de terre sont très belles, elles indiquent l’ordre et contribuent au confort lorsqu’elles se rendent seules ou avec l’aide d’un cultivateur. Une activité de routine désagréable à l'aide de certains appareils, pour l'auto-plantation, peut être une tâche amusante, simple et agréable, et concevoir vos outils manuels nécessaires est un processus de créativité technique.
Aujourd'hui, il existe des dispositifs spéciaux - marqueur, traceur, hérissons, charrue pour la plantation et le désherbage des pommes de terre. Ils faciliteront grandement le travail du jardinier. Le travail, lorsque vous utilisez ces appareils simples, est beaucoup plus rapide,et le résultat est le même efficace, de haute qualité, si cela est fait à la main.
Table des matières
Marqueur pour planter des pommes de terre
Un marqueur est un dispositif qui est nécessaire pour faciliter les activités de plantation manuelle, ainsi que pour rendre les lits même, avec des trous uniformément répartis pour les pommes de terre. En conséquence, ces lits ne sont pas difficiles à manipuler avec des appareils mécaniques ou manuels.

Aujourd'hui, vous pouvez acheter des marqueurs prêts à l'emploi, mais il est préférable de créer une solution personnalisée. La distance entre les charrues adjacentes, l'organisation des trous pour la plantation, correspondra pleinement à la distance entre les roues du motoculteur ou du tracteur.
Les marqueurs peuvent être élémentaires ou très complexes. Vous pouvez les fabriquer à partir de n’importe quel matériau disponible:
- Pieux de bois;
- Conseil durable;
- Tuyaux spéciaux ou ronds en métal.
Marqueur élémentaire
Ceci est un pieu en bois de hauteur 90 centimètres et de diamètre environ 60-70 millimètres. La barre horizontale, qui est fixée à une hauteur d’environ 150 millimètres de la base, servira de support pour limiter la profondeur du trou. Avant de commencer à travailler avec cet appareil, il est nécessaire de tracer un aperçu des futurs trous à l’aide de ficelle. Il est étendu le long des rangées à une distance d’environ 40, 50, 60, 70 ou 80 centimètres entre les lits.
La distance entre les lits dépend de la méthode de travail du sol ultérieure, manuelle ou mécanisée. L'écart entre les fosses d'affilée est d'environ 30 centimètres, en fonction de la taille et de la variété des pommes de terre à planter.
Marqueur
Ceci est une version plus complexe du marqueur, qui est en tuyau, avec un diamètre extérieur de 21 mm. La distance entre les trous sera égale à 29 centimètres. Le cône avec lequel les trous sont réalisés est constitué d'un tuyau Ø 55-65 millimètres. Il doit être soudé au cadre.

Sur la rangée initiale, le cadre est placé parallèlement à la ficelle et, en appliquant la force nécessaire, est immergé dans le sol. Ensuite, nous mettons un cône dans le trou que nous avons tracé, et ainsi de suite. Dans l'autre rangée, les trous sont faits comme sur un échiquier. Le marqueur, fabriqué selon cette méthode, vous permet de planter des pommes de terre dans de petites zonestout en obtenant un rendement élevé.
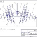
Trois trous en même temps
Ce modèle est composé de tuyaux en métal et de 3 cônes.

Le cadre soudé du marqueur est constitué d’un tuyau spécial léger et résistant d’une taille de 25x25x2 millimètres. Pour ce faire, vous pouvez utiliser le tube d'acier habituel de Ø 32 mm utilisé pour la plomberie ou les conduites de gaz. Les cônes sont en aluminium ou en bois d'acacia, chêne.
Un trou est fait dans la partie cylindrique et un filetage M8 est coupé. Dans le tuyau, il y a trois tels trous traversants Ø 9 millimètres. À travers ces trous, les cônes sont fixés au cadre avec des boulons M8. À l’aide de boulons d’une taille de 40 à 80 millimètres, vous pouvez régler la profondeur de la fosse. La distance entre les cônes est égale à 45 centimètres. Afin de ne pas vous blesser, vous devez mettre des bouchons sur les extrémités ouvertes du tuyau porteur.La hauteur des boulons peut varier. Cela dépendra de la profondeur de la fosse souhaitée. Plus le boulon est large, plus les possibilités sont grandes.

Les cônes en bois doivent être traités avec du papier sablé, un vernis ou de l’huile de lin, afin que le sol ne colle pas lorsqu’on y travaille Tous les composants métalliques doivent être traités contre la corrosion. La hauteur du cadre doit être faite sous votre hauteur. Les valeurs indiquées sur le dessin conviennent pour le chalet avec une hauteur de 175 centimètres.
Scriber pour planter des pommes de terre
Planter des pommes de terre avec un traceur réduira ce processus plusieurs fois. Tout se fait facilement et sans effort. Ce n’est pas difficile à faire, tout homme sera capable de le faire et ne prendra pas plus de 2 heures.

Pour ce faire, vous aurez besoin de deux enjeux. Ø 10 centimètres et deux planches et demi mètres. Les piquets sont fabriqués à partir de barres séchées ou de troncs d'épinette pas épais. Ils ont besoin de traiter, d'affûter les bords et de fabriquer des stylos. Puis clouez-leur la croix de bois.
Il est nécessaire de faire la distance requise entre les enjeux. Si les pommes de terre sont ensuite traitées par un mini-tracteur, la distance doit être d'environ 65 à 70 centimètres. S'il s'agit d'un cultivateur, une distance de 60 centimètres sera rationnelle.Pour le traitement manuel, les enjeux doivent être placés à une distance de 45 à 55 centimètres.
Des stylos doivent être fabriqués pour eux-mêmes, de sorte que plus tard, il n'y avait pas de problèmes au travail. La planche du bas doit être réglée de manière à obtenir le trou avec une profondeur d’environ 10-15 centimètres.

L'idée de travailler avec un traceur est la suivante: le mettre sur le bord de la parcelle, vous devez le tenir par les poignées en face de vous. Ensuite, exercez une pression sur la planche du bas, pendant que les piquets s'enfoncent dans le sol et que la marque laisse une marque. Puis ses mains bougent, faisant le mouvement de va-et-vient, afin d'augmenter les creux. Deux crêtes de trous devraient se révéler, et la troisième crête sera une note à partir de laquelle il est nécessaire de suivre, mais déjà dans l'autre sens, en plaçant le compte à la marque.
Dans le même temps, un homme qui plante des pommes de terre se fait razmetovchik. L'ensemble du processus est rapide et facile. Utilisez cette technique et facilitez votre travail sur le site.
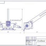
Charrue à la main
Quand il est temps de planter des pommes de terre, les jardiniers agissent selon le schéma suivant: ils marquent pour la plantation, creusent des trous dans la pelle, y mettent des pommes de terre et s’endormissent à la main. Pendant que la pomme de terre pousse, il faut spud plus souvent, ils le font avec une houe. Cela prend beaucoup de temps et d'efforts. Aujourd'hui, ce processus peut être facilité autant que possible.
La charrue manuelle est une adaptation très simple avec laquelle 2 personnes travaillent en même temps. Il consiste en:
- 2 benne pour le travail, avec un couteau d’élagage;
- Traction avant, afin qu'une personne puisse le tirer vers l'avant;
- Poignées derrière, contrôler la deuxième personne.
Il effectue des travaux sur la coupe de rangées pour le débarquement, contribue à l'arrosage des pommes de terre et assouplit le sol.

Pour fabriquer un tel appareil, vous aurez besoin de:
- Tube creux pour support vertical Ø2,5 centimètre, environ 1 mètre de long.
- Morceau de tube creux Ø3/4 pouces pour la fabrication de traction avant et arrière;
- Poussée de la feuille 2 millimètres d'épaisseur pour faire des dépotoirs;
- Pour relier l'avant avec un support vertical une lanière sera nécessaire qui peut être remplacé par une plaque métallique percée de trous permettant de régler l’angle d’attaque;
- Chalumeau ou un brûleur à gaz pour chauffer le métal au niveau des plis;
- Soudage équipement;
- Pour l'usinage de joints besoin de bulgare.
Le long tube doit être plié à une distance d’environ 30 centimètres du début, l’angle doit être compris entre 10 et 15 °. Pour effectuer les plis aider à plier le tuyau. En son absence, vous pouvez faire le pli par la méthode suivante:
- Remplissez le tube par le sable;
- Habillez-vous au bord du tuyau bouts;
Le lieu de flexion estimé est chauffé au chalumeau et commence à se plier.
Le tube plus petit, ainsi que le support perpendiculaire, doit être plié. Pour ajuster la hauteur, nous faisons des trous sur le bord supérieur et les mêmes trous sur la section verticale du bouchon prévu.

La traction à l'avant a la même apparence qu'à l'arrière, mais sa taille diffère. La hauteur de la poignée doit être telle que celui qui marche devant puisse facilement se placer entre les poignées et les saisir.
La hauteur de la partie verticale doit être 60 centimètres il est nécessaire de le rendre plat aux extrémités et de percer des trous pour la connexion avec la section verticale.
Sur le parcours 30 centimètres au-dessous du pied vertical fixez l'angle de traction avant. Puis, à une distance de 25 centimètres de ce trou, soudez le même coin de la taille 25x25 au bouchon. Il fait également un trou et le soude à la crémaillère au-dessus du premier coin.
2ème charrue
2 plaques identiques seront nécessaires. 2 millimètre. Sur eux nous arrondissons les courbes. En soudant, liez les coutures et fixez les 2 moitiés de la charrue à la grille perpendiculaire. Les broyer avec un moulin afin qu'ils soient tranchants.
Couteau de taille

Nous prenons l'acier au carbone le plus fort. Coupez un couteau en forme de pointe de flèche, affûtez-le en biais 45°. Cet angle rendra le couteau tranchant pendant longtemps. À l'aide de la soudure, fixez-le à la grille verticale du bas, polissez-le.
La charrue manuelle pour travailler sur le site est prête!
Hérisson cultivateur pour désherber
Ils enlèvent l'herbe avec des racines, contrairement aux couteaux plats, qui ne coupent que les tiges. Les hérissons rangent le sol entre les rangées, ce qui permet d’obtenir des rangées distinctes et des lits magnifiques. À propos du sol desserré, l'oxygène et le liquide passent bien, ce qui augmente la croissance des racines de pomme de terre, ce qui garantit une excellente récolte.

Désherber les talles faites avec certaines jambes ou avec un couteau rotatif. Force de sélection de l’arbre de torsion du broyeur. L'avantage des pieds est la facilité d'installation et la minutie dans le décollement du sol. Ils assouplissent le sol à une profondeur de 4 à 7 centimètres, selon son état.
Pour le fonctionnement, les pattes doivent être fixées dans certaines fixations à une distance égale à la largeur de la rangée. La fixation a besoin d'un léger chevauchement qui couvrira les deux jambes. Les adaptations peuvent être à la fois unilatérales et bilatérales. Si l'appareil est unilatéral, il est nécessaire de fixer les pieds de manière à ce que les lames se trouvent dans la direction de l'allée.
Il existe un autre dispositif de désherbage à la main, appelé meunier. Ceci est un cadre, avec un couteau et un tambour.Ses roues sont placées dans l'allée, le couteau coupe l'herbe et le tambour en rotation l'attrape et le rejette.
Les cultivateurs existent manuel, électrique avec le moteur à essence. Pour désherber avec un appareil à 2 couteaux, qui sont montés à un angle de 45 °. Il est préférable d'effectuer un désherbage avec un cultivateur sur lequel sont installées trois mini fourches dentelées à la place des couteaux.
Pour plus de confort, ces appareils sont montés sur roues: résident d'été le pousse, en appuyant le plus près possible du lit de jardin.

En utilisant un appareil avec une buse hérisson désherber immédiatement et patate pommes de terre. Hérisson se compose de 2 cônes attachés au cadre. Le cône est composé de 3 roues en acier de différents diamètres. Des pointes pointues sont soudées aux roues. 2 hérissons sont attachés au cadre, ils tournent en même temps. Ils accrochent simultanément l’herbe et rangent le sol à partir de l’espacement des rangs.

Les cultivateurs électriques sont plus dynamiques, ils sont utilisés pour les petits jardins. Leur principal inconvénient est la nécessité de retirer le câble de la prise, ce qui n’est pas toujours confortable. Il est plus rationnel d'utiliser des cultivateurs équipés d'un moteur à essence. Mais ces cultivateurs sont moins dynamiques que les manuels, mais les plus productifs.Sur tous les types de cultivateurs, portez des buses en hérisson. La force du moteur est choisie en fonction de l'état de la terre. Plus elle est lourde, plus l'appareil est puissant.
Accessoires de désherbage avec trimmer
Pour le désherbage à l'aide d'un coupe-herbe, dans lequel le moteur électrique est en haut. Entre les rangées, nous enlevons souvent la tête de coupe avec la ligne de pêche.
Il arrive que pour enlever l'herbe à l'aide d'un couteau à 3 lames. Les couteaux en acier sont attachés à la tondeuse avec un support plat. Si le rack se courbe, attachez les buses en plastique. Si le couteau heurte un obstacle, l'appareil se replie ou se casse.

Sur le marché ou dans le magasin, vous pouvez acheter buses de taille-bordure avec des moulins en terre, qui ont la forme de disques à lames courbes, et montés sur un seul axe. Plus souvent dans une buse 4 moulins.

La taille, le diamètre et le nombre de fraises dépendent de la puissance motrice des tondeuses. Le mode d'emploi de la buse indique pour quelle faucheuse il convient.
Les jardiniers professionnels avant d'appliquer la tondeuse doivent traiter tous les éléments de friction avec de la graisse au silicone.
Règles de traitement des pommes de terre à l'aide d'un taille-haie:
- Avant de traiter vous avez besoin protège tes yeux et maisc, comme lors du désherbage, les couteaux tournent à grande vitesse, soulevant la poussière et la saleté dans l’air.
- Nous devons traiter la zone des mauvaises herbes lorsque l'herbe est encore petite. Le traitement devrait être effectué toutes les deux semaines..
- Weed mieux le matinpuis, pendant la journée, l’herbe se dessèche et se transforme en paille.
- Pas besoin d'immerger les couteaux à une profondeur de plus d'un centimètre et demi. Avec cette technique, la terre est cultivée et le sol reçoit de l'oxygène et de l'azote, ce qui est excellent pour les pommes de terre.
- Vous ne pouvez pas immerger les couteaux aussi parce que peut casser l'appareil.
- Si le moteur de l'appareil n'est pas très puissant, il vous faut faire une pause tous les quarts d'heure.
- À la fin de la saison estivale les buses doivent être traitées avec un désinfectant, pour éliminer tous les germes.

Un couteau cassé peut être changé avec un couteau fait à la main. Pour ce faire, vous devez découper un cercle dans la tôle d'acier et plier les cavités. Le diamètre ne peut pas être plus grand que les couteaux utilisés. Il est interdit de porter des couteaux supplémentaires sur l’arbre de coupe.
Comment faire des hérissons avec vos propres mains, des dessins
Si le jardinier aime travailler avec l'outil et économiser en même temps beaucoup, vous pouvez fabriquer des hérissons pour le désherbage de vos propres mains ou les commander dans l'organisation pour travailler avec le métal. Tout d’abord, vous devez comprendre le fonctionnement des hérissons et dessiner quelques dessins. Ils peuvent être utilisés à la fois sur un cultivateur et pour le travail en tant que mains.
- Rotor de Hilter
- Ripper
- La base
- Hub
Les hérissons peuvent se composer d'un dispositif de desserrage, d'un cadre et d'un support. Le ripper est un tube creux avec des dents en acier soudées à celui-ci. Il est fixé sur le cadre de l’espaceur et fixé à une poignée en bois. En l'utilisant, vous devez rouler le sol d'avant en arrière, ce qui nécessite certaines forces physiques.
Il existe de nombreuses versions de hérissons pour le motocycle et le cultivateur. De nombreux développeurs ont créé leurs propres appareils. La version traditionnelle du hérisson est faite avec des disques en acier. 3 disques de différents diamètres sont nécessaires:
- 100, 200, 300 mm;
- 240, 180, 100 mm.
Le montage de l'appareil est réalisé sur un tuyau de Ø25 mm. À l'aide de cavaliers, les disques en acier sont attachés les uns aux autres, en commençant par le plus grand et en se terminant par le minimum. Il existe des développeurs qui utilisent 5 et 6 facettes au lieu de disques. La distance qui les sépare doit être de 18 centimètres et le diamètre maximum du disque de 36 centimètres. Pour les dents utilisé barre d'acier, couper en 40 morceaux.

Environ pour la construction, vous aurez besoin de 5 pièces de pointes sur un petit disque, 10 pièces par support, 15 pièces au maximum. Il arrive que les goujons de soudage nécessaires sur l'essieu. La longueur d'une pointe est de 14 centimètres.
Il existe aujourd'hui plusieurs types de hérissons:
- Rotatif. La tâche principale de tels hérissons est le désherbage et le hilling. Ils conviennent à tout appareil.
- Conique. Requis pour enlever l'herbe avant le tournage.
Si nous résumons les résultats, on peut noter que l’utilisation d’appareils pour la plantation, le hersage, le désherbage et le semis en mottes à la datcha facilitera ce processuspas laborieux. En utilisant une variété d'échantillons, il est prudent de dire que la récolte sera abondante et ravira le jardinier.



